Pussert und Kosch Architekten
 
Navigation überspringen
  • Aktuell
  • Projekte
  • Wettbewerbe
  • Auszeichnungen
  • Büro
  • Stellenangebote
  • Kontakt
  • Impressum
  • Datenschutz

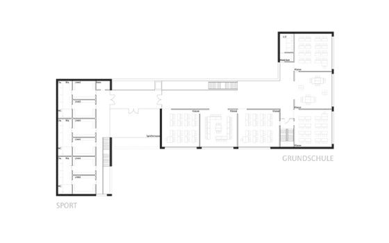
Sportfunktionsgebäude mit Erweiterung der JSG Grundschule in Berlin-Marzahn

2011

Der zweigeschossige Neubau stellt deutliche Bezüge zur nördlich gelegenen Schule und zum Sportgelände her. Die baulich gefassten Bereiche haben eine hohe Aufenthaltsqualität. Dort befinden sich auch die Zugänge in das Gebäude. Ein markantes Entwurfselement ist die Erschließungsachse, die die Schule und die Sporthalle mit dem Neubau verbindet. Über diese eindeutige Wegeverbindung werden alle Funktionen auf sehr einfache und übersichtliche Art und Weise zusammengeführt. Ein Fußweg gewährleistet das sichere Überqueren der Straße. Die Eingangsseite des Neubaus ist großzügig verglast.

Das zentrale Foyer ist das Bindeglied zwischen dem Sport und dem schulischen Bereich. Die einzelnen Funktionen können autark voneinander genutzt werden. Der Sportfunktionsbereich und der Jugendraum besitzen separate Eingänge. Die Umkleideräume im Obergeschoss sind über eine einläufige Treppe direkt an den Ausgang zum Freisportgelände angebunden. Die Räumlichkeiten der Schule werden über das zentrale Foyer erschlossen. Im EG und OG ist vor den Klassenräumen ein großzügiger Flurbereich angeordnet, der bei schlechtem Wetter als Pausenaufenthalt dient. Die Flurzonen sind über eine einläufige Treppe miteinander verbunden. Sämtliche Klassenräume sind über Schallschutztüren miteinander verbunden. Die Räume im Erdgeschosse haben Außentüren und öffnen sich zum angrenzenden Freibereich. Im Obergeschoss wird den Schülern zusätzlich eine Spielterrasse angeboten. Der teilbare Gruppen– und Gymnastikraum befindet sich in unmittelbarer Nähe zum Eingang.

Platzierung:
1. Preis

Verfahren:
Beschränkter Realisierungswettbewerb

Baudaten:
Bruttogrundfläche 2.060 m²
Bruttorauminhalt 7.825 m³

Auslober:
Land Berlin vertreten durch das Bezirksamt Marzahn-Hellersdorf

Mitarbeit:
Susanne Wittber

Navigation überspringen
  • Aktuell
  • Projekte
  • Wettbewerbe
  • Auszeichnungen
  • Büro
  • Stellenangebote
  • Kontakt
  • Impressum
  • Datenschutz