Pussert und Kosch Architekten
 
Navigation überspringen
  • Aktuell
  • Projekte
  • Wettbewerbe
  • Auszeichnungen
  • Büro
  • Stellenangebote
  • Kontakt
  • Impressum
  • Datenschutz

Maritimes Sicherheitszentrum in Cuxhaven

2009

Das Bundesminsterium für Verkehr, Bau und Stadtentwicklung beabsichtigt im Hafengebiet der Stadt Cuxhaven das Maritime Sicherheitszentrum neu zu errichten. Die Partner im MSZ nehmen staatliche Aufgaben der Seeraumüberwachung, der maritimen Sicherheit und Gefahrenabwehr, sowie des Unfallmanagements auf der Nord- und Ostsee wahr. Neben dem gemeinsamen Lagezentrum sind Büroflächen für die beteiligten Behörden untergebracht. Das Lagezentrum ist hoch technisiert. Das 3-geschossige Dienstgebäude des Wasser- und Schifffahrtsamtes wird baulich mit dem Neubau des MSZ verbunden.
Die kraftvolle Gebäudegestalt bezieht sich mit seiner glänzend weißen Keramikfassade auf die Farben von Meeresgischt und Himmel.

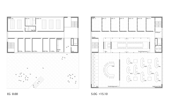
Hinter der beeindruckenden Gebäudeform verbirgt sich eine verblüffend einfache Gebäudestruktur. In der Basis sind Stellplätze für Pkw und Fahrräder sowie die Zugangskontrolle auf das gesamte Betriebsgrundstück untergebracht. In den fünf weiteren zweibündigen Geschossen sind Verwaltungsräume, Umkleiden, Archive und Räume für Betriebs- und Leitstellentechnik angeordent. Das Lagezentrum im auskragenden 6. Obergeschoss ist das Kernstück des MSZ. Symbolisch bildet es den Kopf des Gebäudes und steht, gut gesichert und mit Weitblick, für Kompetenz und Kommunikation auf höchster Ebene. Die Gebäudekonstruktion aus Stahlfachwerk ermöglicht eine Auskragung im oberen Geschoss von 14m. Die Fassadenverkleidung aus glasierten Keramikplatten nimmt die charakteristische diagonale Tragstruktur auf und verleiht dem Gebäude eine erfrischende, glänzende Haut.

Platzierung:
3. Preis, nach Überarbeitung 2. Rang

Verfahren:
Beschränkter Realisierungswettbewerb

Baudaten:
Nutzfläche 1.950 m²
Bruttogrundfläche 2.810 m²
Bruttorauminhalt 12.700 m³

Bauherr:
Bundesrepublik Deutschland
vertreten durch das Staatliche Baumanagement Elbe-Weser

Mitarbeit:
Christian Kroll, Susanne Wittber, Matthias Dalitz

Navigation überspringen
  • Aktuell
  • Projekte
  • Wettbewerbe
  • Auszeichnungen
  • Büro
  • Stellenangebote
  • Kontakt
  • Impressum
  • Datenschutz