Pussert und Kosch Architekten
 
Navigation überspringen
  • Aktuell
  • Projekte
  • Wettbewerbe
  • Auszeichnungen
  • Büro
  • Stellenangebote
  • Kontakt
  • Impressum
  • Datenschutz

Kulturraum Veitsburg Ravensburg

2007

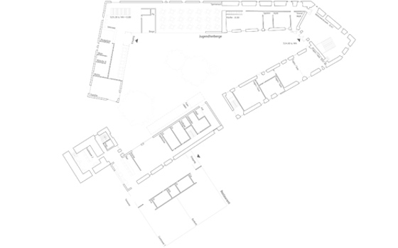
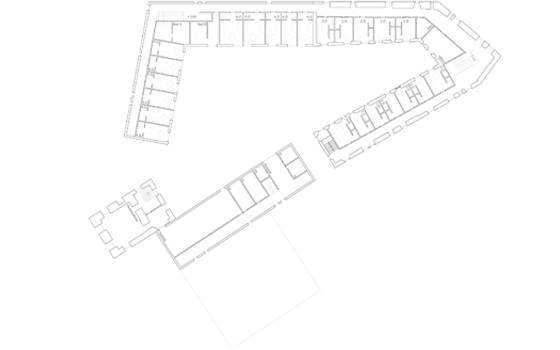
Die Erweiterung der Jugendherberge nimmt die Flucht des Bestandgebäudes auf und folgt der ehemaligen Burgkante bis zu einem Aussichtspunkt. Durch das Abwinkeln des Baukörpers bilden sich neue Platz- und Hofsituationen, die eindeutig von einander getrennt sind und den jeweiligen Gebäuden zugeordnet werden. Die Jugendherberge bezieht sich fast vollständig auf den introvertierten Innenhof der Kernburg. Das im Altbau vorhandene Gangsystem mit dem außen liegenden „Waffengang“ wird konsequent aufgegriffen und fortgeführt. Von diesem Flur aus werden sämtliche Räume erschlossen, die sich in den geschützten Innenhof orientieren. Ein weiterer zweigeschossiger Baukörper mit der Küche und den Nebenräumen der Gaststätte schließt die Burg nach Süden hin ab. Das Restaurant befindet sich in einem flachen eingeschossigen Pavillon vor der Kernburg. Dadurch bleibt die Ablesbarkeit der ursprünglichen Burgform gewahrt. Die ablesbare Teilung in Kern- und Vorburg zeigt sich auch in der Freiflächengestaltung. Während in der Kernburg harte, steinerne Oberflächen verwendet werden, zeigt sich die Vorburg als ein großzügiges grünes Areal mit mächtigem Baumbestand und mineralischen Belägen.

Platzierung:
1. Preis

Verfahren:
Beschränkter Realisierungswettbewerb

Baudaten:
Nutzfläche
Jugendherberge 1.567 m²
Restaurant 463 m²

Auslober:
Stadt Ravensburg, Amt für Architektur
und Gebäudemanagement

Mitarbeit:
Lars Wobar, Susanne Wittber

Freiraumplanung:
Rehwaldt Landschaftsarchitekten

Navigation überspringen
  • Aktuell
  • Projekte
  • Wettbewerbe
  • Auszeichnungen
  • Büro
  • Stellenangebote
  • Kontakt
  • Impressum
  • Datenschutz