Pussert und Kosch Architekten
 
Navigation überspringen
  • Aktuell
  • Projekte
  • Wettbewerbe
  • Auszeichnungen
  • Büro
  • Stellenangebote
  • Kontakt
  • Impressum
  • Datenschutz

Erweiterung Polizeipräsidium Düsseldorf

2010

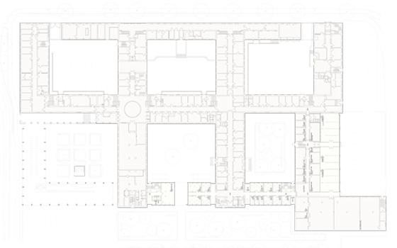
Die bestehenden Gebäude von Polizeipräsidium und Ministerium für Bauen und Verkehr prägen durch eine sehr strenge und orthogonale 4-5-geschossige Gebäudestruktur das Stadtfeld. Der Erweiterungsbau nimmt die rechwinklige Struktur des Altbaus auf und definiert 3 neue Höfe mit unterschiedlichen Charakteren. Er reicht vom Jürgensplatz bis zur Neusser Straße entlang der neuen „Grünen Achse“, die sich zukünftig bis an das Rheinufer erstrecken wird. Leichtigkeit und Filigranität zeichnen den Neubau aus. Offenheit und Transparenz werten das ehrwürdige Bestandsgebäude auf. Das Denkmal bleibt in seiner Grundfigur erlebbar. Fassadenmaterial und -farbe des Altbaus bleiben als verbindendes Element erhalten.

Der Jürgensplatz existiert heute nur noch als Fragment seiner einstigen Form. Wesentlicher Ansatz des Entwurfs ist das Freistellen des Platzes unter Beibehaltung funktionaler Ansprüche an die Nutzung der angrenzenden Gebäude. Hierdurch tritt die städtebauliche Struktur wieder in den Vordergrund. Durch den Neubau einer zweigeschossigen Tiefgarage kann der Jürgensplatz fast gänzlich vom ruhenden Verkehr befreit werden. In Anlehnung an die historische Zweigliedrigkeit des Jürgensplatzes entsteht ein durchgängiger Platzraum, der sich in zwei Kernbereiche unterteilt. Zum Einen der ehemalige Exerzierplatz als offener Innenhof, zum Anderen das neue, offene Entree des MBV. Abgeleitet aus der vorgefundenen Geometrie der Bestandsbauten und der neu entwickelten Ergänzungsbauten entsteht ein klares, gerastertes Grundgerüst. Die vorgenommene Strukturierung der Platzfläche formuliert den neuen Eingang. Der Platz wird ein Ort der Kontemplation und vermittelt eine Atmosphäre des Wohlempfindens.

Umfang:
Instandsetzung und Erweiterung
Neubau einer Tiefgarage
Neugestaltung Jürgensplatz

Platzierung:
Anerkennung

Verfahren:
Beschränkter Realisierungswettbewerb

Baudaten:
Nutzfläche
Erweiterungs-Bau 5.880 m²/ Tiefgarage 13.040 m²
Bruttogrundfläche
Erweiterungs-Bau 8.330 m²/ Tiefgarage 13.556 m²
Bruttorauminhalt
Erweiterungs-Bau 28.070 m³/ Tiefgarage 43.379 m³

Auslober:
Bau- und Liegenschaftsbetrieb NRW
Niederlassung Düsseldorf

Mitarbeit:
Matthias Dalitz
Lars Wobar
Christian Kroll

Freianlagenplanung:
r+b Landschaftsarchitektur

Navigation überspringen
  • Aktuell
  • Projekte
  • Wettbewerbe
  • Auszeichnungen
  • Büro
  • Stellenangebote
  • Kontakt
  • Impressum
  • Datenschutz