Pussert und Kosch Architekten
 
Navigation überspringen
  • Aktuell
  • Projekte
  • Wettbewerbe
  • Auszeichnungen
  • Büro
  • Stellenangebote
  • Kontakt
  • Impressum
  • Datenschutz

Berufliche Oberschule in Regensburg

2012

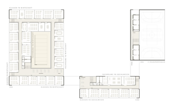
Die BOS besteht aus 3 Baukörpern: Dem Gebäude des I.BA FB Wirtschaft und Technik, dem geplanten II.BA FB Soziales und der Zweifeldsporthalle. Der 3-seitig gefasste, quadratische Schulhof öffnet sich zu den Freisportanlagen mit einem schönen Blick über die Stadt. Durch die leicht versetzt zueinander stehenden, rechtwinklichen Bauten bilden sich vor den jeweiligen Eingängen kleine Plätze mit hoher Aufenthaltsqualität. Die Bushaltestelle befindet sich direkt vor dem Haupteingang der Schule. Die Baukörper nehmen die vorhandene Topografie auf. Durch einen Niveausprung innerhalb des Hauptbaukörpers erhalten die Pausenhalle und der Speisesaal eine maximierte Geschosshöhe, die den geforderten Raumgrößen angemessen ist. Die Eingänge der Gebäude sind über filigrane Pergolen miteinander verbunden. Der zentrale Schulhof wird durch die Baulichkeiten klar definiert und begrenzt.

Die Schule wird über den südlichen Haupteingang erschlossen. Die zentrale und von oben belichtete Pausenhalle ist das Herz der BOS. Der Speisesaal kann über eine flexible Trennwand mit der Pausenhalle für Veranstaltungszwecke verbunden werden. Im erhöhten Erdgeschossbereich sind die Verwaltung, das Lehrerzimmer und die Bibliothek untergebracht. Die Klassen- und Fachräume für Wirtschaft befinden sich im 1. Obergeschoss, die Unterrichts- und Fachräume für Technik im 2. Obergeschoss. Die funktionale Gliederung drückt sich in den Fassaden aus. Der dreigeschossige Erweiterungsbau des II.BA ist das bauliche Bindeglied zwischen dem Hauptschulbaukörper und der Sporthalle. Er ist über alle Etagen zweibündig und sehr wirtschaftlich organisiert. Am östlichen Ende ist eine Flurerweiterung für den interdisziplinären Austausch und visuellem Kontakt in den Schulhof geplant. Die Sporthalle schließt den Schulhof nach Osten hin ab.

Platzierung:
2. Preis

Verfahren:
Beschränkter Realisierungswettbewerb

Baudaten:
Bruttogrundfläche 13.500 m²
Nutzgrundfläche 8.800 m²
Bruttorauminhalt 60.300 m²

Auslober:
Stadt Regensburg, Amt für Hochbau

Mitarbeit:
Susanne Wittber

Freiraumplanung:
Rehwaldt Landschaftsarchitekten

Navigation überspringen
  • Aktuell
  • Projekte
  • Wettbewerbe
  • Auszeichnungen
  • Büro
  • Stellenangebote
  • Kontakt
  • Impressum
  • Datenschutz